
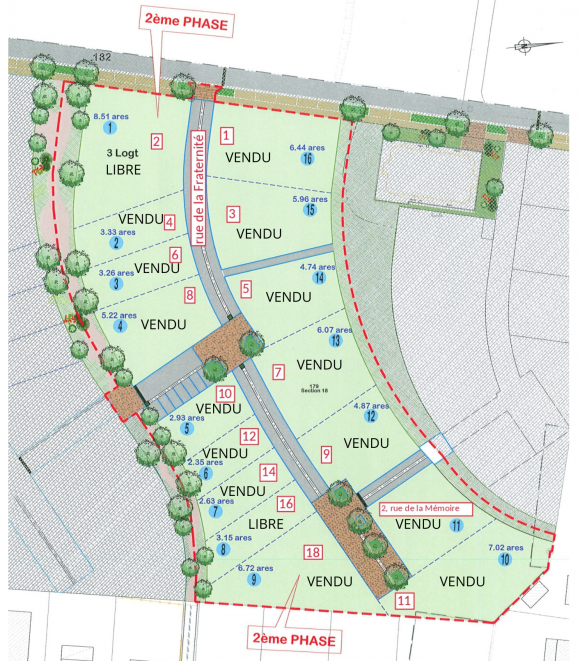
La commune de HATTEN vous accueille dans son lotissement de l’Abri. Situé au sud-ouest de la commune, le lotissement de l’Abri offre un cadre d’habitation calme en bordure d’agglomération.
Vous pouvez consulter plans et règlements en cliquant sur les liens ci dessous. Pour tout renseignement complémentaire veuillez vous adresser au secrétariat de la mairie au 03 88 80 00 26.
Le prix du terrain est de 11500€ TTC l’are (viabilisé).
PHASE 2

PHASE 3

Pour réserver un terrain veuillez nous adresser le formulaire ci dessous :
Commune de Hatten
1, place de la Mairie
67690 HATTEN
mairie@hatten-alsace.com